countryplans logo
CountryPlans.com do it yourself country house plans

Helping builders since 1978. Online since 1997.

The Volks Cottage

28x42 Volks Cottage Plans Kit from CountryPlans.com

Specs

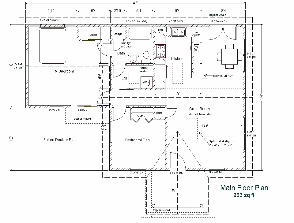
  • 983 square feet (28’x42’)
  • 2 bedrooms
  • 1 bathroom 
  • Dining room and living room
  • Porch plans included
  • Electrical layouts and plumbing locations included
  • Foundation plans: slab and crawlspace included
  • All structural information needed for starting the permitting and construction bid process included
  • Materials List included

Purchase Plans 


  • PDF plans generally arrive within hours 
  • Paper plans include 5 sets of plans and arrive in a few days via USPS
  • Choose PDF plans for an eco-friendly option and to reduce paper usage and save money
  • PDFs are delivered to your email address on file with PayPal unless you provide another address

Select an option:

Overview

The Volks Cottage is an alternative floor plan for the Grandfather Cottage. Slightly larger, but still under 1000 sf. this easy to build Cottage House can be built on either a slab or crawlspace foundation (both foundation plans are included). The roof is trussed with a sloped cathedral section over the Living Room. Optional skylights fit between the trusses and bring in extra light to the center of the house.

 

All interior walls are non-load bearing so the interior can be revised as needed. The addition wing could easily be reflected on the other side of the cottage for a large family room or sunroom/dining room. The plans have the structural information needed for building permits and contractor bids. The roof is built with inexpensive lightweight trusses engineered to your local requirements and these can often be delivered to the tops of the walls. Plans include electrical layouts and plumbing fixture locations.

 

This home is designed to be sun tempered and well insulated. The walls are 2x6 @ 24" o/c and the insulation is R-21. The trusses are "energy" trusses for R-38 ceiling insulation all the way to the outside wall. The plans include easy to change window and door layouts for customizing the layout for your site and climate. The slab floor option includes insulated thermal mass that can be used for sun warmed floors and lower heating bills. Information is included for a radiant floor heating system using a small gas water heater.

Included with the drawings are additional upgraded details (items not required for permit) — interior and exterior trim options, window hoods, and a craftsman style upgrade to the porch.  The Plans kit also include a Project Planner for customizing your plans and getting the best prices from builders and subcontractors, and a Building Department Strategy Checklist for smoothing the sometimes tricky process of getting your permits.

28x42 Volks Cottage Plans Kit from CountryPlans.com includes

Plans also include:

  • info on how to find the right land
  • tips for dealing with the building dept. 
  • notes about heating, hot water, & a/c
  • info about foundations and soil types
  • a guide for how to read house plans
  • a guide to typical platform framing
  • a guide to earthquake and wind bracing 
  • details for rafter and dormer framing

This earlier photo shows the two skylights that bring light into the interior of the house

A Customer’s Story*

The owner's carpenter grandson built this house. Planned as a family building project, it not only saves money, but gives the young builder a chance to manage a full-sized construction project on his own. He will probably go on to build some fine homes for others judging by the care he is taking on this one.

A house like this is a particularly good one for an owner/builder/contractor. The one-story construction is simple to frame, there is no stairway to deal with, the roof trusses eliminate most roof issues, and the heated floor slab simplifies the number of subcontractors who must be managed. Plus the floor plan is more flexible than almost any other type of design. This allows for easy modifications even after the project is underway.

Notes on the cost of this home: The owners spent around $65k for everything including a $1,500 outside storage shed and a $1,500 propane stove. The hardwood cabinets, new appliances, jetted 6' bath tub, W/D, etc. are included in that figure. The builder got $25/hr wages but probably didn't bill for all his time. Other subs (friends of the family) probably billed less than they normally would as well. The house is quite nice on the interior with rounded drywall and wood trimmed (vinyl) windows and doors.

A customer-built Grandfather Cottage

*this is the story of the Grandfather’s Cottage (a reversed layout of the Volks Cottage)

Cute, jumping house at CountryPlans.com
CountryPlans.com logo

Helping builders since 1978. Online since 1997.