countryplans logo
CountryPlans.com do it yourself country house plans

Helping builders since 1978. Online since 1997.

Grandfather Cottage

28x42 Granfather Cottage Plans Kit from CountryPlans.com

Specs

  • 952 square feet  (28’x42’)
  • 2 bedrooms
  • 1 bathroom 
  • Dining room and living room
  • Porch plans included
  • Foundation: slab and crawlspace options included
  • All structural information needed for starting the permitting and construction bid process included
  • Materials List included

Purchase Plans 


  • PDF plans generally arrive within hours. 
  • Paper plans include 5 sets of plans and arrive in a few days via USPS
  • Choose PDF plans for an eco-friendly option and to reduce paper usage and save money
  • PDFs are delivered to your email address on file with PayPal unless you provide another address

Select an option:

Overview

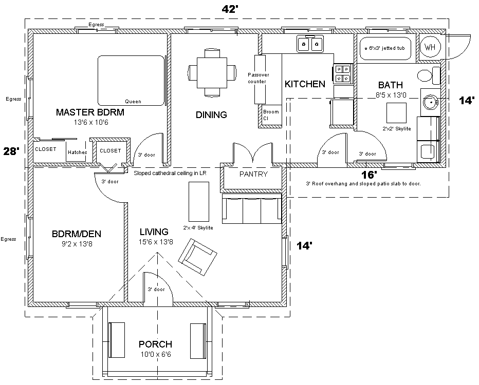
This classic 952 sq. ft. cottage has two bedrooms and one bath. It is laid out for easy access with 3' doors and a ramp to the outside door on the right. The sunny porch makes a great sitting spot. The house can be built on a slab or crawlspace foundation (both are included). The roof is trussed with a sloped cathedral section over the Living Room. Two skylights fit between the trusses and bring in extra light to the center of the house. All interior walls are non-load bearing so the interior can be redesigned as needed.

 

The Grandfather House Plans Kit includes a license allowing you to make as many copies as needed for your builder and building department. The plans are in 11" x 17" format - which are easy to copy almost anywhere. The plans are complete blueprints that include structural information needed for permits and construction bids. The interior walls can be moved, eliminated, or relocated as the roof is built with inexpensive lightweight trusses engineered for your local requirements. You can modify these plans using the custom design elements page (windows and doors) included in the plans.


This home is sun tempered and well insulated. The walls are 2x6 @ 24" o/c and the insulation is B.I.B.S. - the "blown in batt system" (R-21 min. but performs as R-26 due to filling all small gaps - very cost effective). The trusses are "energy" trusses for R-38 ceiling insulation all the way to the outside wall. Pointed to the south, this home uses less than 60% of the energy of a standard code house in the NW climate and it would do even better in sunnier climates. This house can be built inexpensively with plywood siding (we have added wood batts for an old-time board and batt look). Alternatively, you can call out shingles or any siding of your choice. Also included are drawings for optional upgrade details (items not required for permit). These include trim options, window hoods, and a craftsman style upgrade to the porch.


28x42 Granfather Cottage Plans Kit from CountryPlans.com includes

Plans also include:

  • info on how to find the right land
  • tips for dealing with the building dept. 
  • notes about heating, hot water, & a/c
  • info about foundations and soil types
  • a guide for how to read house plans
  • a guide to typical platform framing
  • a guide to earthquake and wind bracing 
  • details for rafter and dormer framing

This earlier photo shows the two skylights that bring light into the interior of the house

A Customer’s Story

The owner's carpenter grandson built this house. Planned as a family building project, it not only saves money, but gives the young builder a chance to manage a full-sized construction project on his own. He will probably go on to build some fine homes for others judging by the care he is taking on this one.

 

A house like this is a particularly good one for an owner/builder/contractor. The one-story construction is simple to frame, there is no stairway to deal with, the roof trusses eliminate most roof issues, and the heated floor slab simplifies the number of subcontractors who must be managed. Plus the floor plan is more flexible than almost any other type of design. This allows for easy modifications even after the project is underway.

 

Notes on the cost of this home: The owners spent around $65k for everything including a $1,500 outside storage shed and a $1,500 propane stove. The hardwood cabinets, new appliances, jetted 6' bath tub, W/D, etc. are included in that figure. The builder got $25/hr wages but probably didn't bill for all his time. Other subs (friends of the family) probably billed less than they normally would as well. The house is quite nice on the interior with rounded drywall and wood trimmed (vinyl) windows and doors.

A customer-built Grandfather Cottage

Cute, jumping house at CountryPlans.com
CountryPlans.com logo

Helping builders since 1978. Online since 1997.