countryplans logo
CountryPlans.com do it yourself country house plans

Helping builders since 1978. Online since 1997.

Two Story Universal Cottage

The 20’ by 34’ Two Story Universal Cottage House Plans Kit from CountryPlans.com has a saltbox foundation

Specs

  • 1360 square feet (20’x34’)
  • 3 bedrooms
  • 3 bathrooms 
  • 9 Foundation types included
  • Porch plans included
  • Materials List included
  • Plans contain all structural information needed for permits and construction bids
  • Editable CAD file available 
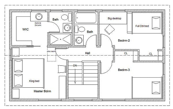
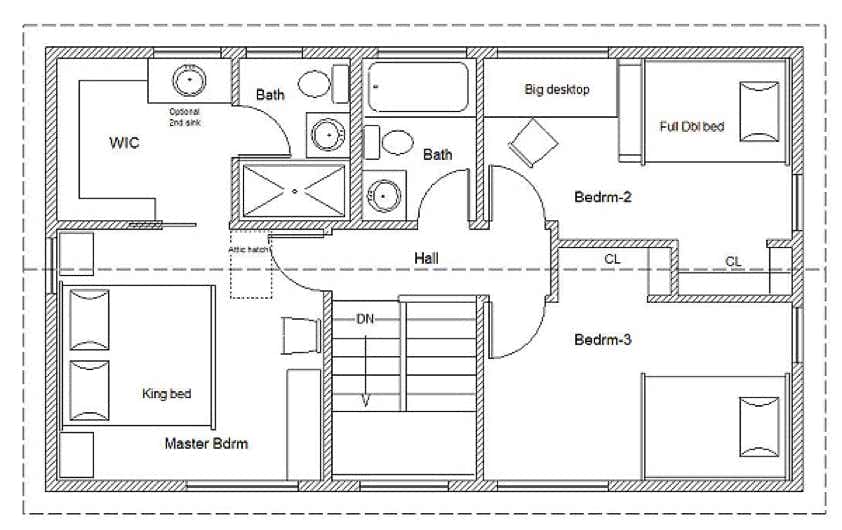
20 by 34 floor plan from CountryPlans.com

upper floor plan

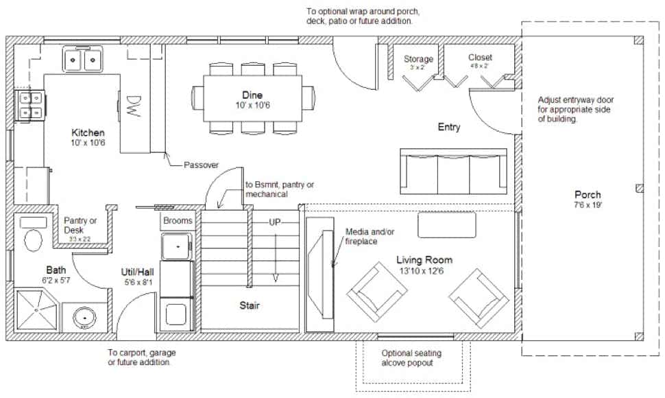
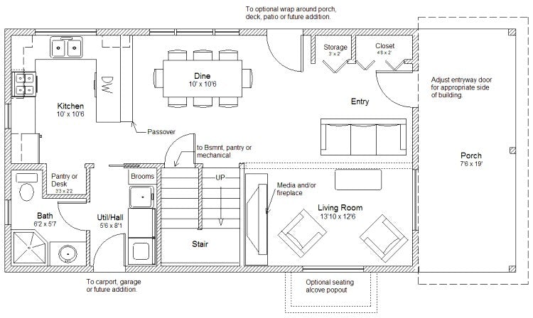
20 by 34 main floor plan from CountryPlans.com

main floor plan

Purchase Plans 


  • PDF/CAD plans generally arrive within hours and are delivered to the email address on file with PayPal (unless you provide another address) 
  • Choose PDF/CAD plans to reduce paper usage and save money
  • Paper plans include 5 sets of plans and arrive in a few days via USPS

Select an option:

Overview

  • Full structural floor plans (main, upper and basement)
  • Full foundation plans and details for a basement, crawlspace, slab, or beam and pier (post & beam) foundation
  • Structural cross section with basement, crawlspace, slab and pier and beam foundation options
  • Roof and attic framing plans and details for both truss and rafter & joist framing
  • Optional truss diagrams for flat or cathedral ceiling in the upper story
  • Basement plans with details for your choice of poured concrete, concrete block, or the stud and plywood all-weather wood foundation system
  • Foundation details for two types of concrete slab on grade floors and two types of pier and beam systems
  • Framing plans for floors using both I-joists for full width spans, or 2x8 joists and an exposed interior beam and post support system
  • Porch framing plans and details for the shed roof porch in the photo, plus an extendable wrap around porch that can run down either side
  • Four elevations including trim and siding details
  • Electrical plans and plumbing layout notes
  • A bonus sheet with complete plans and details for a pop-out bed and sitting alcove that can be added to any outside wall (it needs no foundation)

This classic 20' wide farmhouse-style home is built with simple platform frame construction on your choice of nine different foundation types to adapt to your specific soils, budget and site. The home feels spacious and open but is efficient with its use of space. The plan has three bedrooms and three bathrooms, a utility hall and a full sized wrap around stair. The stair can go down to a basement or on up to the attic, should you need to expand up there in the future. Because of the simple framing system much of the interior layout can be modified by the owner or builder.

 

The Two Story Universal Cottage is a great starting platform for your own home building project because additional wings can be added in the future and the plans include options you might choose to build anytime, such as an add-on window seat or wrap around porch. The 16 page plan set includes all the drawings and information normally needed by builders and the building department, including:

Plans are ready to submit to your building inspector after you decide which foundation plan sheet to include and which way you want to build the roof. Electrical plans and plumbing locations are included. As with any building plans, you may be required by the inspector to make changes for your local codes and requirements. The 6 page materials list includes all materials for the post & pier foundation, house framing, hardware, insulation, windows and doors, drywall, electrical, plumbing and interior trim. This can be helpful for pricing materials and tracking costs.

Plans also include:

  • Superinsulation techniques for cold climates 
  • Hot water and heating system design notes
  • A checklist and tips for going to the building department
  • A diagram and glossary of standard building terms
  • A ‘How to Read Plans’ diagram 
  • Trim, Siding and Money Saving Ideas
The 2 Story Universal Cottage House Plans Kit from CountryPlans.com includes everything seen here.

Here is everything that comes with a plan set (note that paper orders come with 5 sets of printed plans, only one is shown here)

Here’s the front entry area, looking over the dining area towards the kitchen

The 20’ by 30’ Two Story Universal Cottage House Plans Kit from CountryPlans.com has a saltbox foundation

A customer-built Two Story Universal Cottage with a porch on the long-end of the house

A Customer’s Story

Here are a few photographs of a local builder’s version of the Universal Cottage. This was built by Sky Hoelting on Whidbey Island, Washington State. The owner used board and batt siding, with shingles on the gable ends. There are nice porch details and an attached carport in the rear. Click here to see a few more photos.

The living room

Cute, jumping house at CountryPlans.com
CountryPlans.com logo

Helping builders since 1978. Online since 1997.