countryplans logo
CountryPlans.com do it yourself country house plans

Helping builders since 1978. Online since 1997.

The One Story Cottage

The 20x30 Single Story Universal Cottage from CountryPlans.com

Specs

  • 600 square feet  (20’x30’) 
  • 1 bedroom
  • 1 bathroom
  • 3 Foundation plans included
  • Porch plans included
  • Electrical & plumbing plans included
  • Materials List included
  • Editable CAD File available 
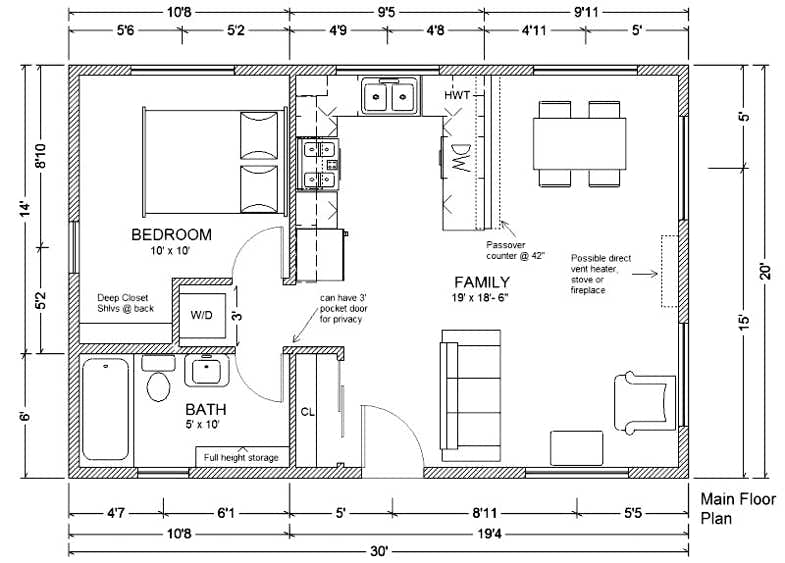
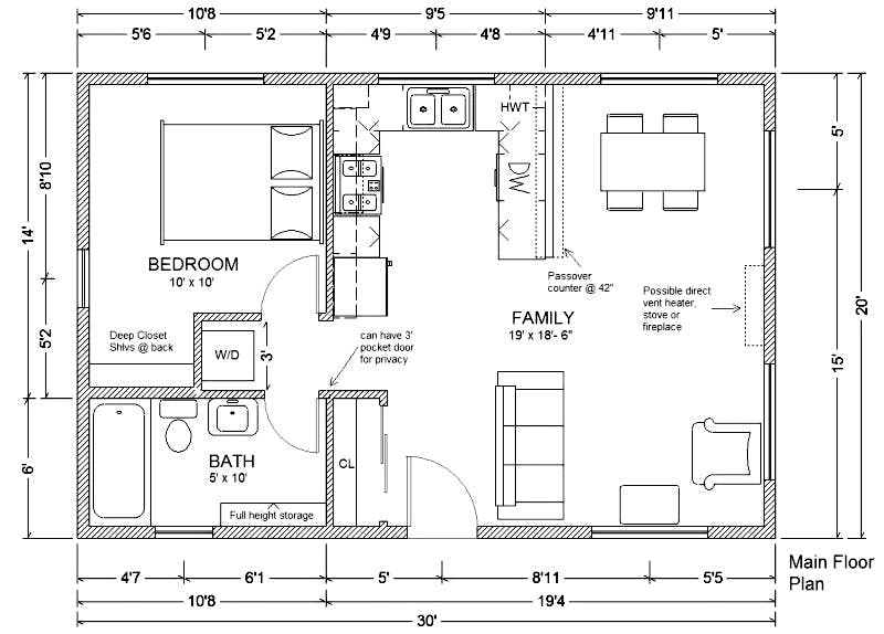
20x30 One Story Cottage from CountryPlans.com floorplan

Purchase Plans 


  • PDF/CAD plans generally arrive within hours and are delivered to the email address on file with PayPal (unless you provide another address)
  • Choose PDF/CAD plans to reduce paper usage and save money
  • Paper plans include 5 sets of plans and arrive in a few days via USPS

Select an option:

Overview

This is a simple to build, one level cottage. It has standard 8' sidewalls built with a sturdy 2x6 framing system. The roof pitch can be adjusted for different climates (it is shown as 10:12 in the elevation above). There are three different foundation plans you can use: concrete perimeter crawlspace, slab on grade (2 versions for different climates) and the easy to build post and pier foundation. Each is on a separate blueprint sheet as you will use only one of the three.

This rendering shows an interior view for a steep pitched roof with open "timber truss collar ties". This roof is actually built as a standard rafter framed roof with beefed up collar ties every 4'. They are built from standard 2x lumber so there is no special carpentry skills needed. These heavy looking "timber trusses" are great for hanging fixtures such as fans and lights. Full details for how to build this are included. The bedroom and bath use standard attic trusses for a flat ceiling. A pull down stair can provide access to attic storage. The Family room can have cathedral trusses or the exposed rafter ties shown above. The floor plan can be easily modified since interior walls do not carry loads.

The plan set also comes with porch layouts and details allowing you to design an 8' deep hip roofed gable end porch or a shed roofed side porch that can wrap around two sides. This porch system is very adaptable and allows for flexible indoor/outdoor living space. With some modification owners can even enclose part of the porch area for more interior living area. Plans also include an electrical plan and plumbing layouts, two options for heating and cooling and two different locations for the hot water tank (electric or gas). Most people will not require a mechanical room.

Plans also include:

  • Notes on how to customize your plans
  • An Open Beam Ceiling guide
  • A How to Read Plans guide with diagrams and a glossary of standard building terms
  • A checklist and tips for going to the building department
  • Info on foundations and soil types
  • Platform Framing info
  • Earthquake and Wind Bracing info
  • Plumbing and Electrical info
The 20x30 Single Story Universal Cottage from CountryPlans.com comes with everything seen here

Here is everything that comes with a plan set (note that paper orders come with 5 sets of printed plans, only one is shown here)

A Customer’s Story

Here’s the first message from Cody: 


“Here are some photos of the 20x30 one story we built from your plans. We went with 8' sidewalls and an 10/12 roof pitch on a slab. I think we will do a little loft over the bedroom and bathroom. Up to this point building has been very easy partly because I built the outer walls in my sisters barn and then used a U-haul to take them to the site."

"I built them with 5/8" plywood using 2x6 studs. Each panel was 4x8. I had to build this way because my husband was away in school and I have two girls - one 2 and the other was 2 months at the time, now she is 5 months old.  It only took one day to bring the panels in and set them up. Everything was perfectly square and plumb. If I had been a little braver I would have installed the windows and doors beforehand and maybe even put the Tyvek on."

Here’s the second message from Cody: 


“My husband is home now and was able to help with everything but the outer walls. He is unable to do a whole lot because he is military and works about 80 hours a week.  We did have someone do the slab and the metal roof. We only paid $3,800 for the slab and 40" deep footings so I couldn't pass it up. The metal roof, installed was $1,185 - not much more than shingles."

"I will be happy to explain to anyone how to panelize their house. It is sooooooo simple, especially if you plan the doors and windows to fit inside a 4x8 sheet."


-Cody


20x30 One Story Cottage from CountryPlans.com

The finished 1 Story Cottage

Here you can see the roof rafters in place and how every other rafter is tied across with an exposed built-up beam (made out of 2x lumber). Part of this will be decked over later for a loft.

The builder, Cody, with the little one and the barn-built panels

Here’s how the Tyvek was cut and the windows were installed. 

The weatherized 1 Story Cottage

Cute, jumping house at CountryPlans.com
CountryPlans.com logo

Helping builders since 1978. Online since 1997.